Bathroom for Public of construction design drawing
Description
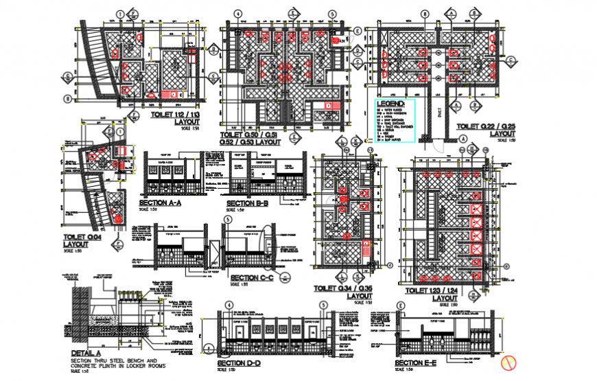
Here the Bathroom for Public of construction design drawing with various types use public toilet layout design, section design drawing, elevation design drawing, elevational section design drawing in this auto cad file.
File Type:
DWG
File Size:
1 MB
Category::
Construction
Sub Category::
Construction Detail Drawings
type:
Gold
Uploaded by:
Eiz
Luna

