Architectural 2 BHK ground floor house design drawing
Description
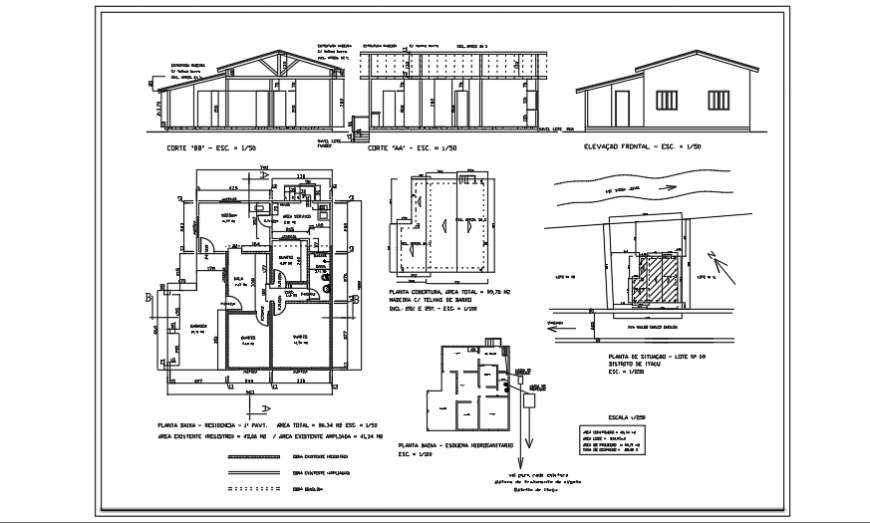
Here the Architectural 2BHK ground floor house design drawing with 2 bedrooms, kitchen, service area, garage, Hall, bathroom area, wash area, all needed room available with simple planning design drawing in this auto cad file.
Uploaded by:
Eiz
Luna
