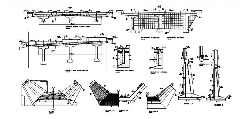
Construction details of bridge structural blocks dwg file
Description
Construction details of bridge structural blocks dwg file that shows bridge plan details along with retaining wall structure details and bridge span dteials and dimension length width details along with column pier supporters details also included in drawings.
Uploaded by:
Eiz
Luna

