2 d cad drawing of Porpoised building of hospital auto cad software
Description
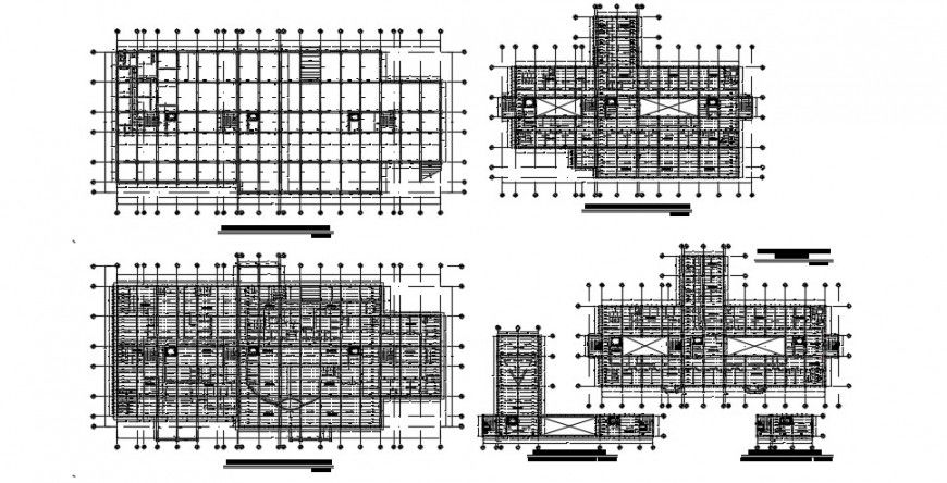
2d cad drawing of Propoised bulding of hospital autocad software detailed with all clinic rooms and other basic structure area with mentioned details shown with hospital structure shown with xray rooms and sonographic room and other patient room and clinic room and other doctor room.
Uploaded by:
Eiz
Luna
