2d cad drawing of bathroom section with points auto cad software
Description
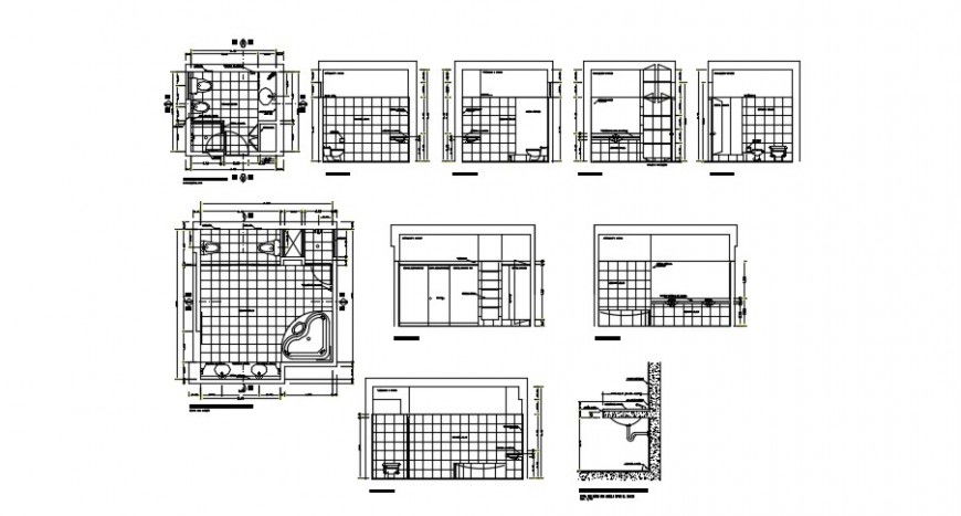
2d cad drawing of bathroom section with points autocad software detailed with bathroom detailed with closet and washbasin and and shower area and door level and detailed concrete level and dimension mentioned in drawing and flush points.
Uploaded by:
Eiz
Luna

