2 d cad drawing of Detail drywall auto cad software
Description
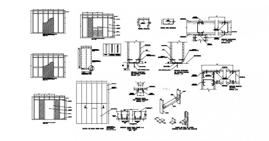
2d cad drawing of Detail dry wall autocad software detailed with wall construction tht connects the rest of the drawing with other detailked drawing of wet wall withb patch cement and other components shown in drawing with detailed description.
File Type:
DWG
File Size:
338 KB
Category::
Construction
Sub Category::
Construction Detail Drawings
type:
Gold
Uploaded by:
Eiz
Luna

