Terrace plan detail and furniture layout plan dwg file

Terrace plan detail and  furniture layout plan dwg file
Profile

Uploaded by:

Eiz

Luna

Description

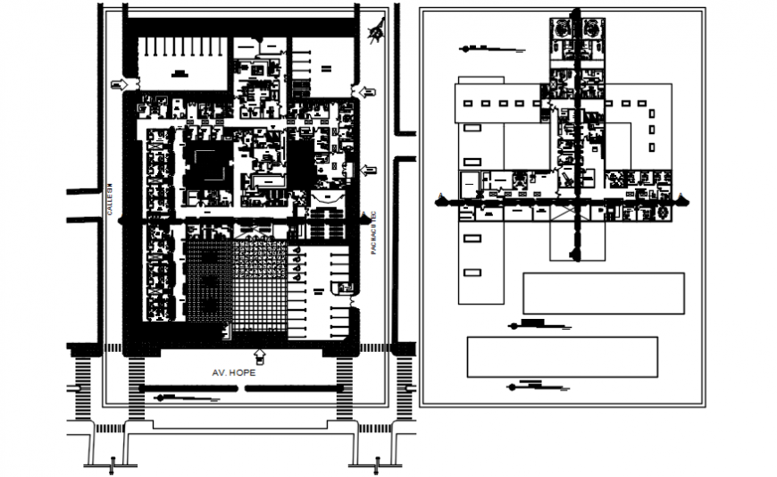
Terrace plan detail and furniture layout plan dwg file. here there is top view terrace view detail plan and furniture layout plan details of hospital. complete overview is shown in depth and detail in auto cad format

Profile

Uploaded by:

Eiz

Luna

find Latest

Related Files