2 d cad drawing of specialty clinic elevation auto cad software
Description
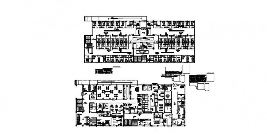
2d cad drawing of specality clinic elevation autocad software with detailed patient and waiting area and seprate clinic doctor room and xray room and medical store and other test room been aligned separately. Doctor clinic with specialist and other sonographic room.
Uploaded by:
Eiz
Luna

