2 d cad drawing of lake villa auto cad software
Description
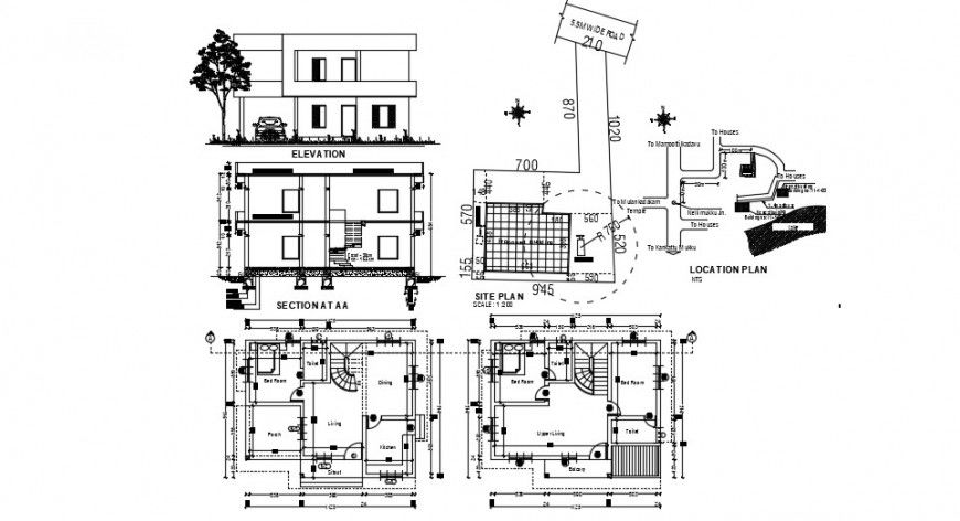
2d cad drawing of lake villa autocad software detailed with site plan with living and dinning area and and bedroom plan and other related drawing with common toilet area and and location plan been shown in drawing with elevation and section shown in drawing.
Uploaded by:
Eiz
Luna

