2 d cad drawing of multiple ten level plan auto cad software
Description
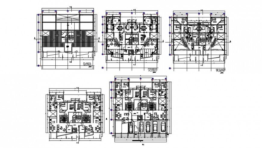
2d cad drawing of multiple ten level plan autocad software tht shows the floor plan with two bedroom plan with attached toilet area and living area awith dining area and kiythen area and store room and wash area separately and common toilet for hall uinit.
Uploaded by:
Eiz
Luna

