Section of a terrace and roof of house in dwg file
Description
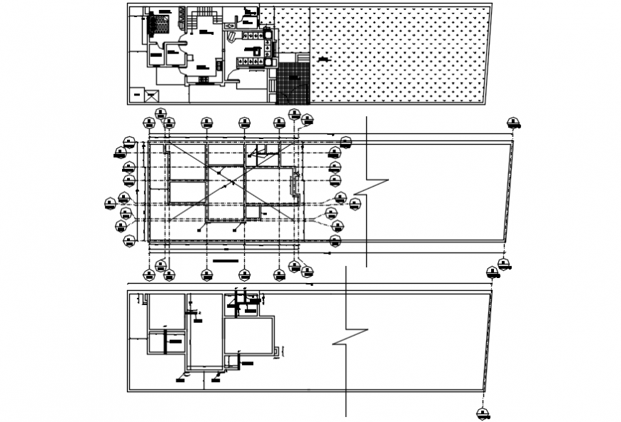
Section of a terrace and roof of house in dwg file. here there is sectional detail of a roof with all details and spacing area of a house is also shown with garden detailing in auto cad format
Uploaded by:
Eiz
Luna

