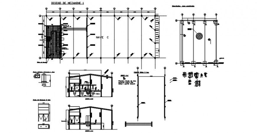
Industrial warehouse section and structure details dwg file
Description
Industrial warehouse section and structure details that includes that includes a detailed view of wide roads and tree and plants with block numbers with main entry gate and security check area, garden area and loading area details and parking area provided.
Uploaded by:
Eiz
Luna

