Machine room section and layout plan cad drawing details dwg file
Description
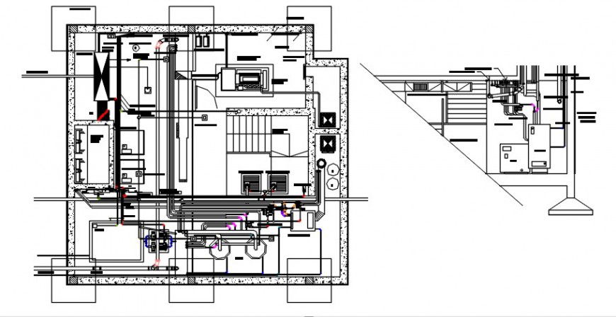
Machine room section and layout plan cad drawing details that includes a detailed view of machinery equipment details, electrical details, dimensions and scale details and much more of machine room details.
File Type:
DWG
File Size:
111 KB
Category::
Mechanical and Machinery
Sub Category::
Mechanical Engineering
type:
Gold
Uploaded by:
Eiz
Luna

