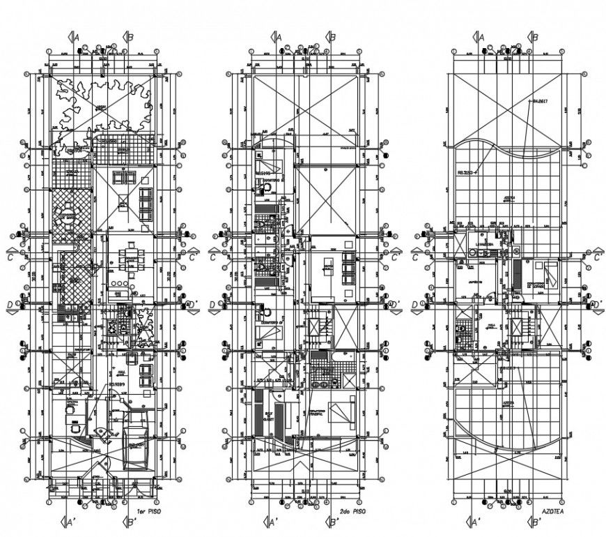
2 d cad drawing of pazerro house floor plan auto cad software
Description
2d cad drawing of pazerro house floor plan autocad software detailed with floor plan with car parking area and wiuth foyer area and with living room and dining area and bedroom with attached toilet are aand other kitchen with store room and wash area and bedroom with all luxury bath tuvb with garden area
Uploaded by:
Eiz
Luna

