Multiple sports courts plan, landscaping and structure details dwg file
Description
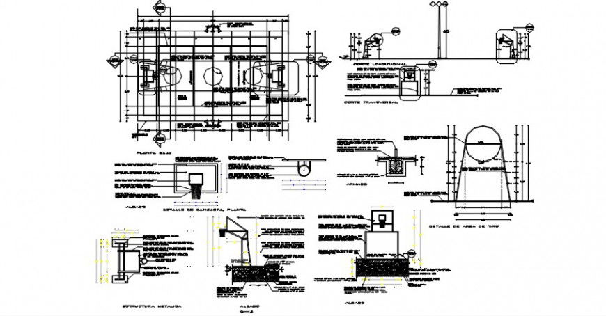
Multiple sports courts plan, landscaping and structure detailsthat includes a detailed view of top view plan details with line and measurement details, landscaping details, dimensions details and much more of sports ground details.
Uploaded by:
Eiz
Luna

