Elevation and sectional details of apartment autocad dwg file
Description
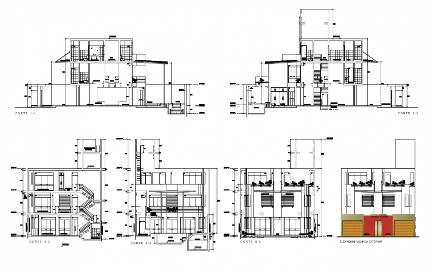
Elevation and sectional details of apartment autocad file that shows house apartment different sides of elevation like front elevation along with sectional details and staircase details leveling details also included in drawings.
Uploaded by:
Eiz
Luna

