2d CAD footing details with water tank detailing in autocad file
Description
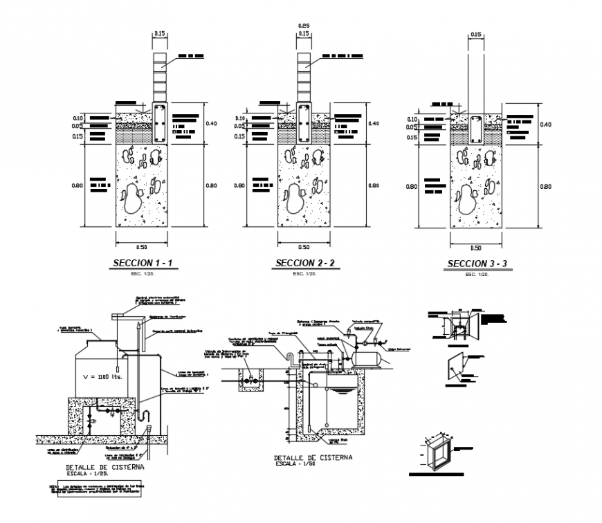
2d CAD footing details with water tank detailing in autocad file that shows foundation footing details along with concrete masonry and reinforcement dteials in tension and compression zone with main and distribution hook up and bent up bars details. Water tank details with water tank capacity pipe valve block details are also included in drawings.
Uploaded by:
Eiz
Luna

