2 d Cad drawing of Two bedroom house rough plan auto cad software
Description
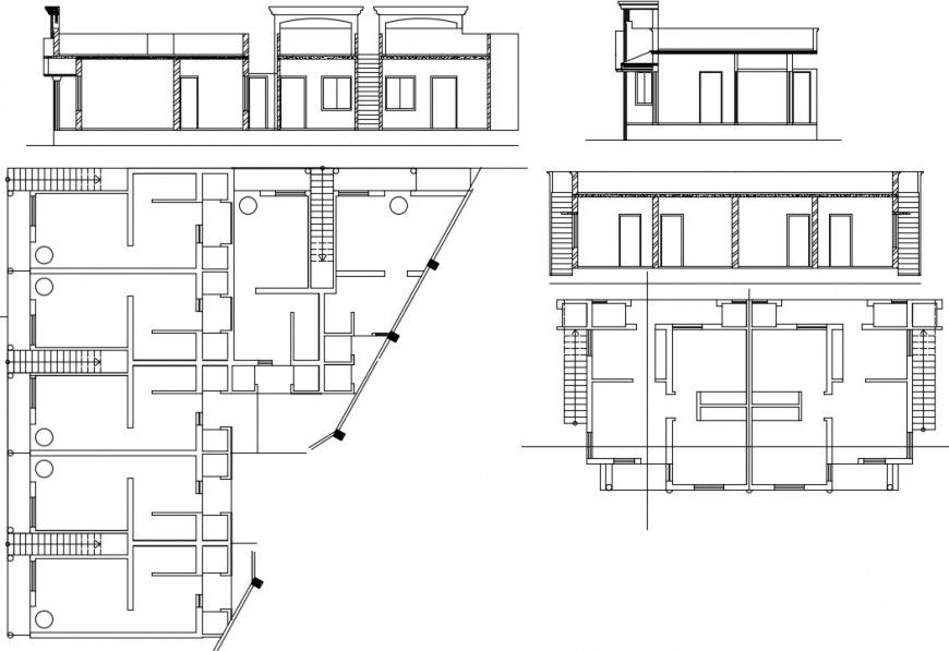
2d Cad drawing of Two bedroom house rough plan autocad software detailed with living room and dinning area and other kitchen layout with crockery unit and store room and wash area and common toilet area and orher detailed two bedroom with attached toilet area and dressing room and rough elevation of plan given.
File Type:
DWG
File Size:
325 KB
Category::
Interior Design
Sub Category::
Bathroom Interior Design
type:
Gold
Uploaded by:
Eiz
Luna

