House balcony constructive section drawing details dwg file
Description
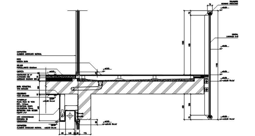
House balcony constructive section drawing details that includes memory of materials, footings details, column view and beam construction, covers closure type with soil buried wall closure and interior partition and granite veneer of the country with steel supports and much more of balcony details.
Uploaded by:
Eiz
Luna

