Air condition section, plan and electrical automation drawing details dwg file
Description
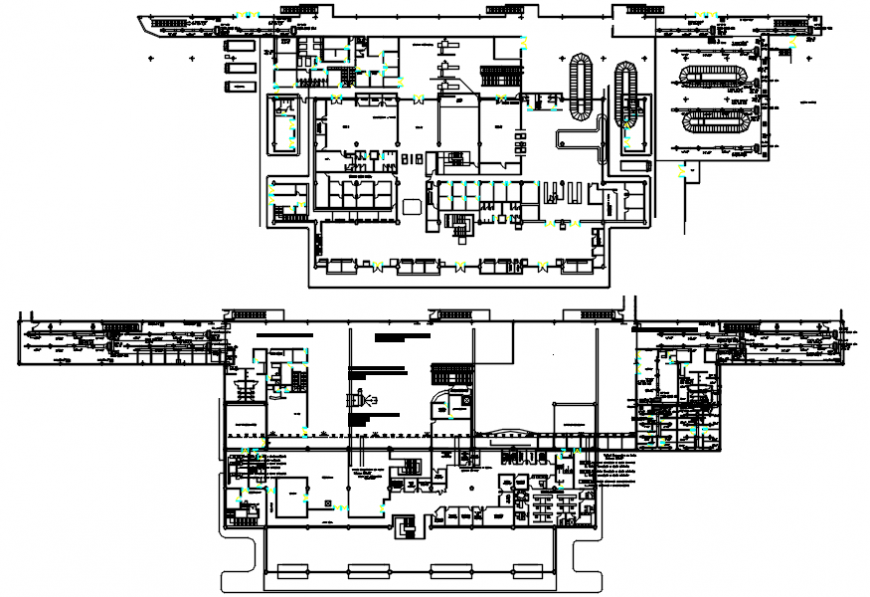
Air condition section, plan and electrical automation drawing details that includes computation and schedule of loads with general notes and specifications, panel board details, riser diagram with legends and electric equipment details, cable details and dimensions details and much more of electrical installation details.
Uploaded by:
Eiz
Luna

