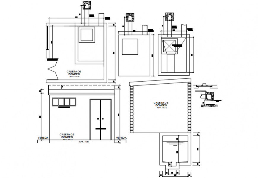
Hospital clinic section, plan and auto-cad drawing details dwg file
Description
Hospital clinic section, plan and auto-cad drawing details that includes a detailed view of door and wall details, layout plan details, dimensions and scale details and much more of clinic details.
Uploaded by:
Eiz
Luna

