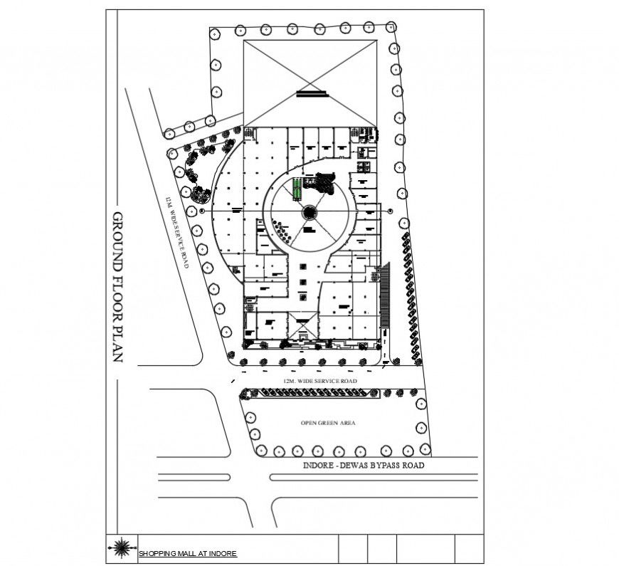
2 d cad drawing of ground floor plan shopping mall auto cad software
Description
2d cad drawing of ground floor plan shopping mall autocad software detailed with main road view with garden area and seprate cabin and shop been spacious and given with related drawing with zone wise car parking area.
Uploaded by:
Eiz
Luna
