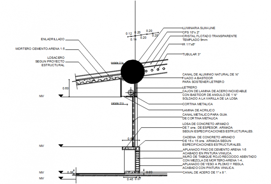
Cut constructive section and construction drawing details of bar dwg file
Description
Cut constructive section and construction drawing details of bar that includes a detailed view of free auto-cad file including flooring view with wall construction with memory of materials, footings details, column view and beam construction, covers closure type with soil buried wall closure and interior partition and granite veneer of the country with steel supports, halfeneisen type with Brick partition with plaster plastering and Concrete wall and much more of bar details.
Uploaded by:
Eiz
Luna

