2d cad drawing of complex high-density elevation housing autocad software
Description
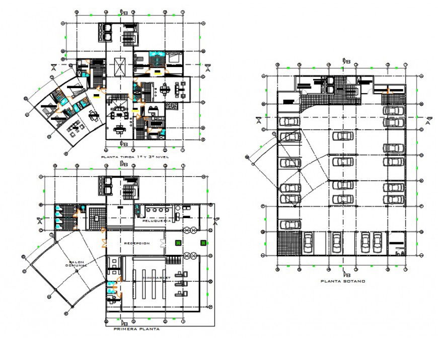
2d cad drawing of complex high density elevation housing autocad software detailed with all other detailed drawing with long bulding with so many floors and and elkevation with doors and windows and car parking and other bulding blocks and route plans shown in drawing with detailed car parking seen in drawing.
Uploaded by:
Eiz
Luna

