Commercial center building 2d view floor plan autocad software file
Description
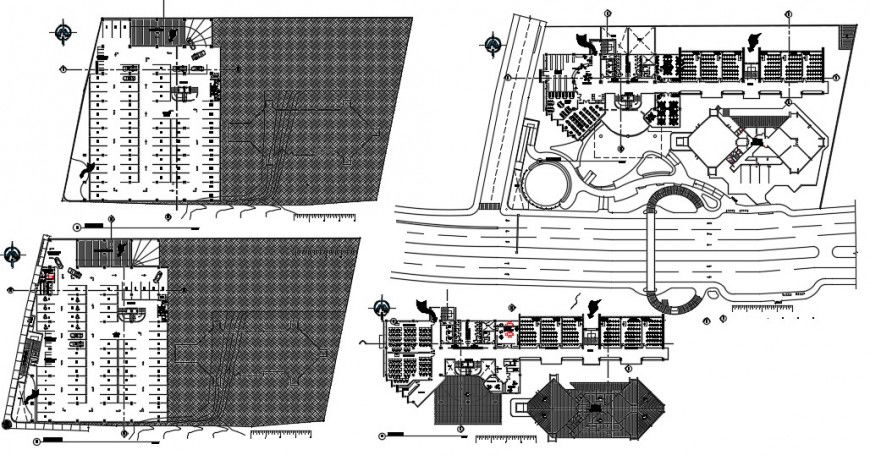
Commercial center building 2d view floor plan autocad software file that shows work plan drawings details of building along with furniture blocks details and floor level details. Dimension hidden line details with road networks detailsparking space details section line details also included in drawings.
Uploaded by:
Eiz
Luna

