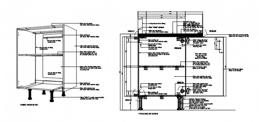
Kitchen wooden cabinet section and carpentry drawing details dwg file
Description
Kitchen wooden desk section and carpentry drawing details that include a detailed view of kitchen cabinet with colours details and size details, type details etc for multi-purpose uses for cad projects.
Uploaded by:
Eiz
Luna

