CAD 2d view structural details of bridge autocad software file
Description
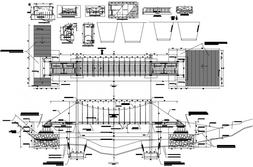
CAD 2d view structural details of bridge autocad software file that shows bridge plan details along with bridge span detailsf and cable details. Bridge length width detials along retaining wall dteials also included in drawings.
Uploaded by:
Eiz
Luna

