Steel door framing, installation and structure drawing details dwg file
Description
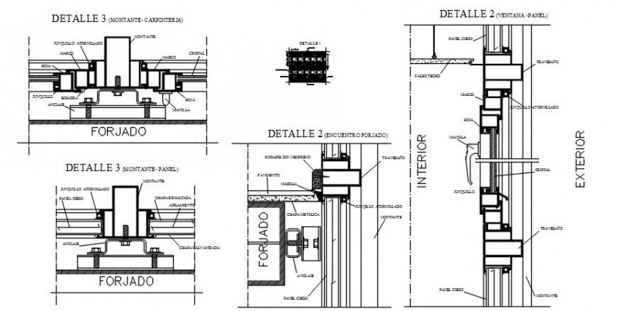
Steel door framing, installation and structure drawing details that includes wires and fences and galvanized mesh with clamps galv, aluminum couplings amarres galv, rh place 1 into the spot and 2 in the corners, pe as reinforcement in straight sections, technical specifications and model selection, symbology details, dimensions details with joints details and much more of door installation details.
Uploaded by:
Eiz
Luna

