2 d cad drawing of multi-family 2architecture auto cad software
Description
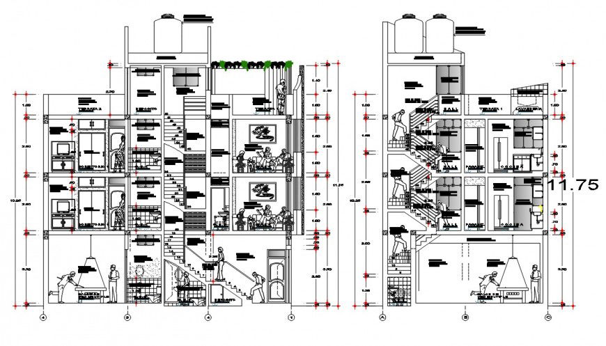
2d cad drawing of multi family artitecture autocad software detailed with primer plan and second floor level with staircase area and other lining detail with dining area and kitchen area and master bedroom plan seen in drawing.
Uploaded by:
Eiz
Luna

