Multiplex theater ground and first floor distribution plan drawing details dwg file
Description
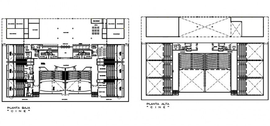
Multiplex theater ground and first floor distribution plan drawing details that includes a detailed view of main entry gate and security check, sensor details and screening rooms with screen, stairways and food point counters with male and female sanitary details, control room and ticket counter and vip lounge, kids game room and hall, passage with exit gate with luggage counter, seating and waiting lounge and admin office and much more of theater project.
Uploaded by:
Eiz
Luna

