kitchen cabinet sectional detail elevation file
Description
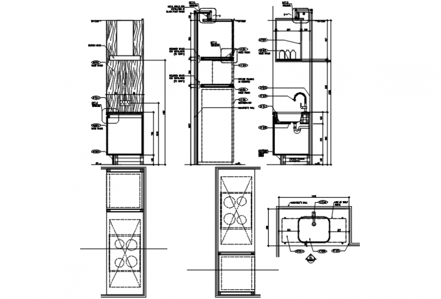
kitchen cabinet sectional detail elevation file.Kitchen room detail plan elevation section view dwg file, Kitchen room detail plan elevation section view, plan view design , section view, detail dimensions of kitchen room, sanitary item detail , elevation interior view etc
Uploaded by:
Eiz
Luna

