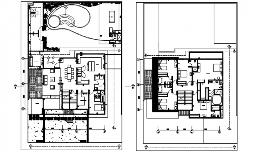
Floor plan distribution drawing details for luxuries clubhouse dwg file
Description
Floor plan distribution drawing details for luxuries clubhouse that includes a detailed view of flooring view, doors and windows view, staircase sectional details, balcony view, wall sections and dimensions details with main entry house door, drawing room and living room, family hall details kitchen and dining area with entertainment department like swimming pool, auditorium hall details, spa and gym center and cafeteria and indoor staircases also provided and laundry area and balcony, details and bedroom or master bedroom, toilets and bathroom with indoor doors, furniture details and much more of clubhouse project.
Uploaded by:
Eiz
Luna

