Restaurant block distribution plan drawing details for hotel building dwg file
Description
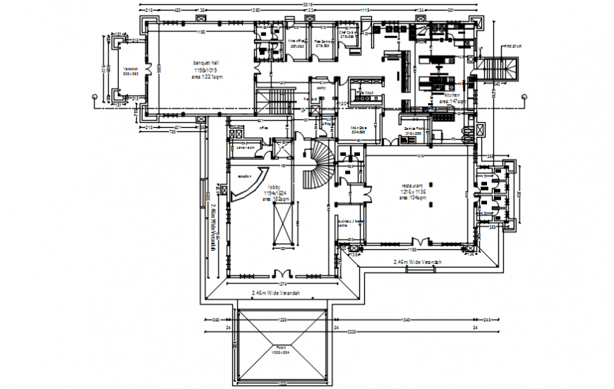
Restaurant block distribution plan drawing details for hotel building that includes reception area with waiting lounge, dining area with banquet hall and kitchen and cleaning department details and staff room and sanitary facilities provides with furniture details with interior details and much more of restaurant project with free download auto-cad file.
Uploaded by:
Eiz
Luna

