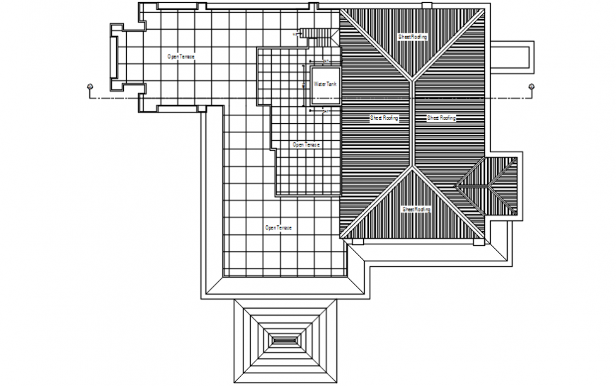
Top floor distribution plan drawing details of luxuries hotel building dwg file
Description
Top floor distribution plan drawing details of luxuries hotel building that includes door details, staircase view, sheet roofing, open terrace, dimensions and scale details and much more of hotel details.
Uploaded by:
Eiz
Luna

