Commercial complex basement floor plan distribution details dwg file
Description
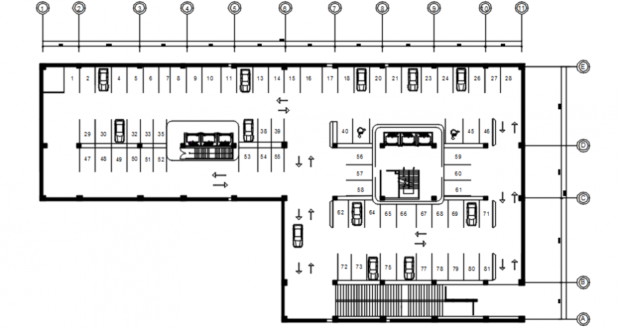
Commercial complex basement floor plan distribution details that includes a detailed view of indoor parking spaces, dimensions and scale details, sanitary facility details, car blocks and much more of building details.
Uploaded by:
Eiz
Luna

