Slatted chamber sill camara and constructive section details dwg file
Description
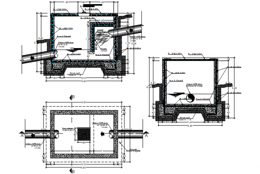
Slatted chamber sill camara and constructive section details that includes memory of materials, footings details, column view and beam construction, covers closure type with soil buried wall closure and interior partition and granite veneer of the country with steel supports, halfeneisen type with Brick partition with plaster plastering and Concrete wall and much more of construction details.
File Type:
DWG
File Size:
919 KB
Category::
Construction
Sub Category::
Construction Detail Drawings
type:
Gold
Uploaded by:
Eiz
Luna

