2d cad drawing of toilet construction detail auto cad software
Description
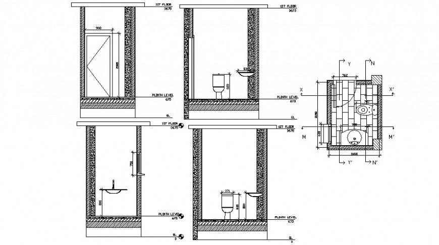
2d cad drawing of toilet construction autocad software detailed with all basic construction detaild with related ddrawing and other detailed seen with all closet and wash basin and wall attached seen in drawing with floor wise and othr section seen in drawing.
Uploaded by:
Eiz
Luna
