2d cad drawing of brick wall elevation auto cad software
Description
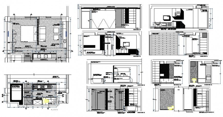
2d cad drawing of brick wall elevation autocad software detailed with brick house elevation shown with staircase area and other detailed staircase and dimension shown with wadrobe cabinet and shelfs.
File Type:
DXF
File Size:
708 KB
Category::
Construction
Sub Category::
Construction Detail Drawings
type:
Gold
Uploaded by:
Eiz
Luna

