2d cad drawing of interior designer elevation office auto cad software
Description
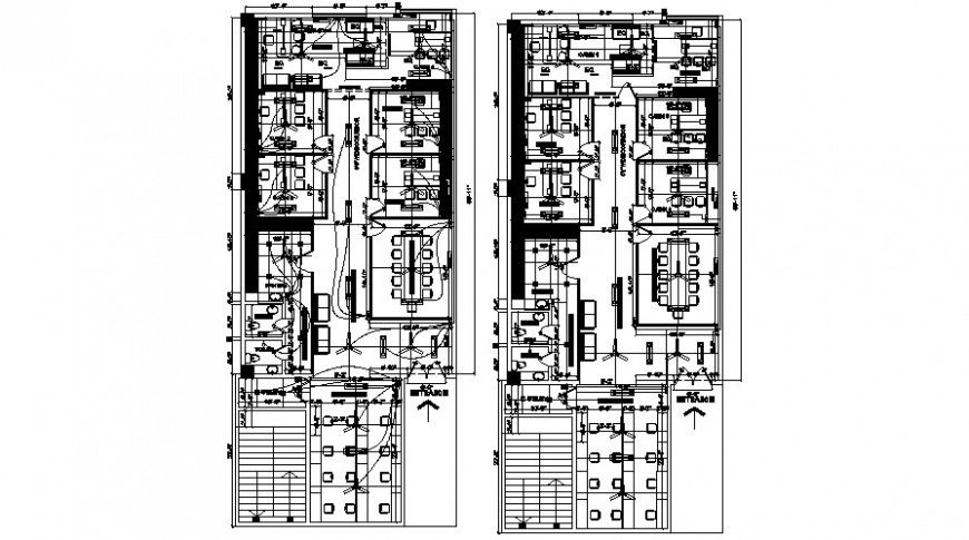
2d cad drawing of interior designer elevation office autocad software detailed with all imporant detaiuls been detailed with regulated receiption area and conference room and other detailed with office related drawing with all basic informtion and other related rooms woith seprsate branch office and consulatnt and regarded with main offices given in plan.
Uploaded by:
Eiz
Luna

