2d cad drawing of hotel elevation details auto cad software
Description
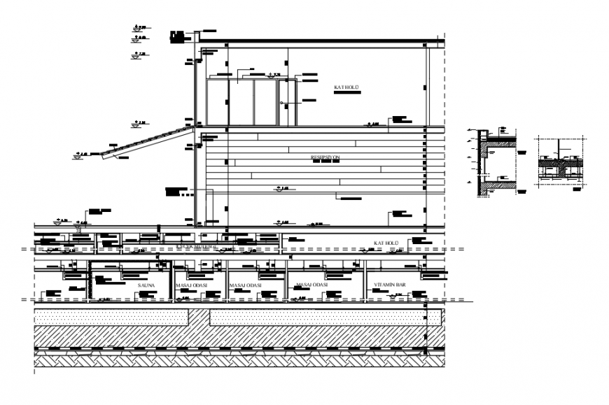
2d cad drawing of hotel elevation details autocad software detailed with allotted section with floor wise rooms and other related with staircase and allotted space area with all basic concrete level and hold room shown with connected assigned drawing.
Uploaded by:
Eiz
Luna

