2d cad drawing of TV unit and bookcase auto cad software
Description
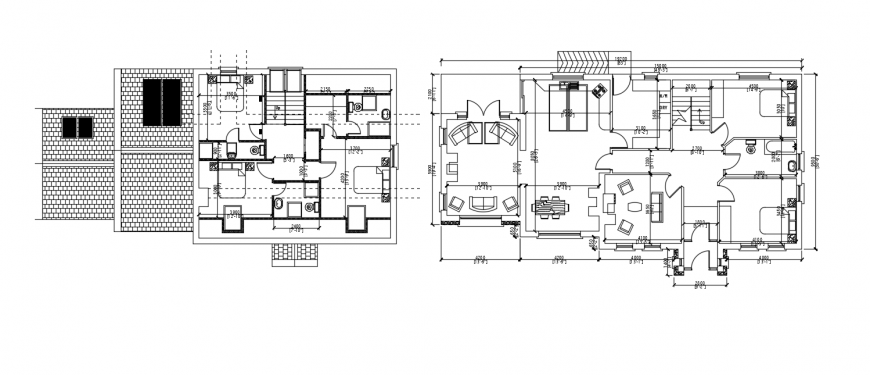
2d cad drawing of Tv unit and book case autocad software detailed with all living room area with dining area and study room with library book shelf and tv unit in drawing room shown in house plan.
Uploaded by:
Eiz
Luna

