2d cad drawing of home theater elevation auto cad software
Description
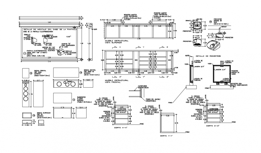
2d cad drawing of home theatre elevation autocad software detailed with structural base and other construction detail of speaker and other detailed drawing with mentioned dimension and related construction base of home theatre.
Uploaded by:
Eiz
Luna

