2d CAD structural drawings details of RCC constriction units dwg file
Description
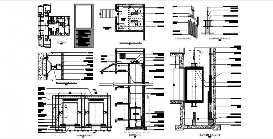
2d CAD structural drawings details of RCC constriction units dwg file that shows reinforcement details in tension and compression zone concrete masonry details. concrete masonry details with main and distrubution hook up and bent up bars details along with sectional details of structure alos included in drawings.
File Type:
DWG
File Size:
—
Category::
Construction
Sub Category::
Reinforced Cement Concrete Details
type:
Gold
Uploaded by:
Eiz
Luna
