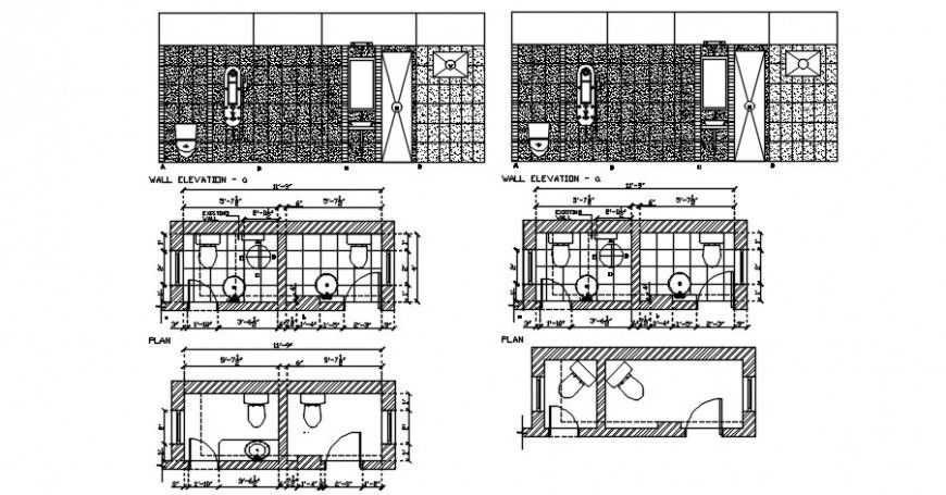
Bathroom plan and elevation drawings 2d view autocad software file
Description
Bathroom plan and elevation drawings 2d view autocad software file that shows bathroom plan detail along with sanitary units detail of washbasin watercloset along with elevation details and door ventilation detail also included in drawings.
File Type:
DWG
File Size:
152 KB
Category::
Interior Design
Sub Category::
Bathroom Interior Design
type:
Gold
Uploaded by:
Eiz
Luna

