2d cad drawing of distribution office plan auto cad software
Description
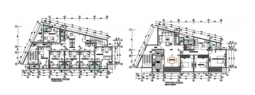
2d cad drawin g of distribution office plan autocad software detailed with floor level with reception area with office station work area and cabin wise with detailed firniture layout plan and other common toilet area shown in drawing
Uploaded by:
Eiz
Luna

