2d cad drawing of junior classroom auto cad software
Description
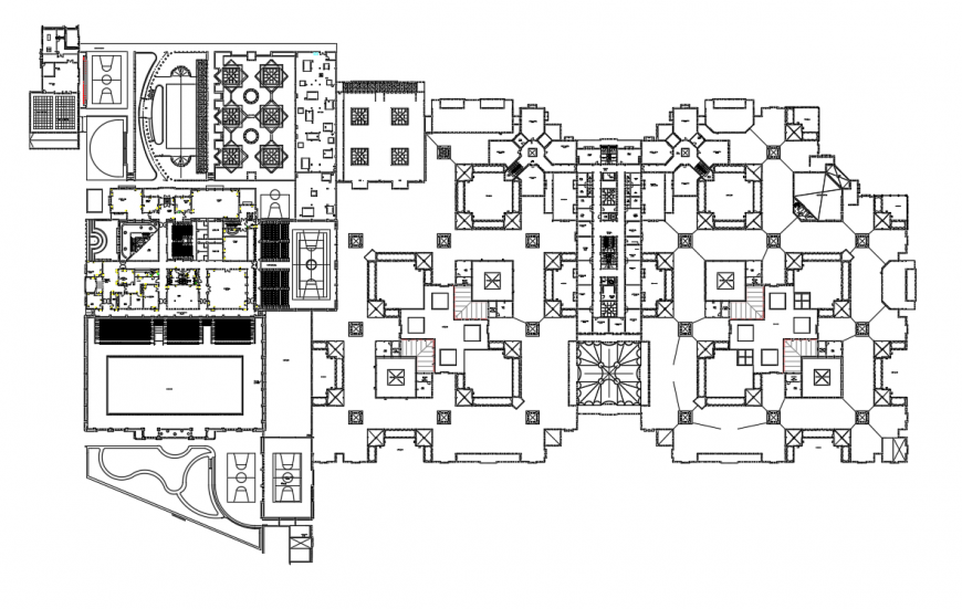
2d cad drawing of junior classroom autocad software detailed with junior classroom and other art area and computer lab room and other detailed description with all sports area and garden area shown in drawing
Uploaded by:
Eiz
Luna

