2d cad drawing of set hostel room elevation auto cad software
Description
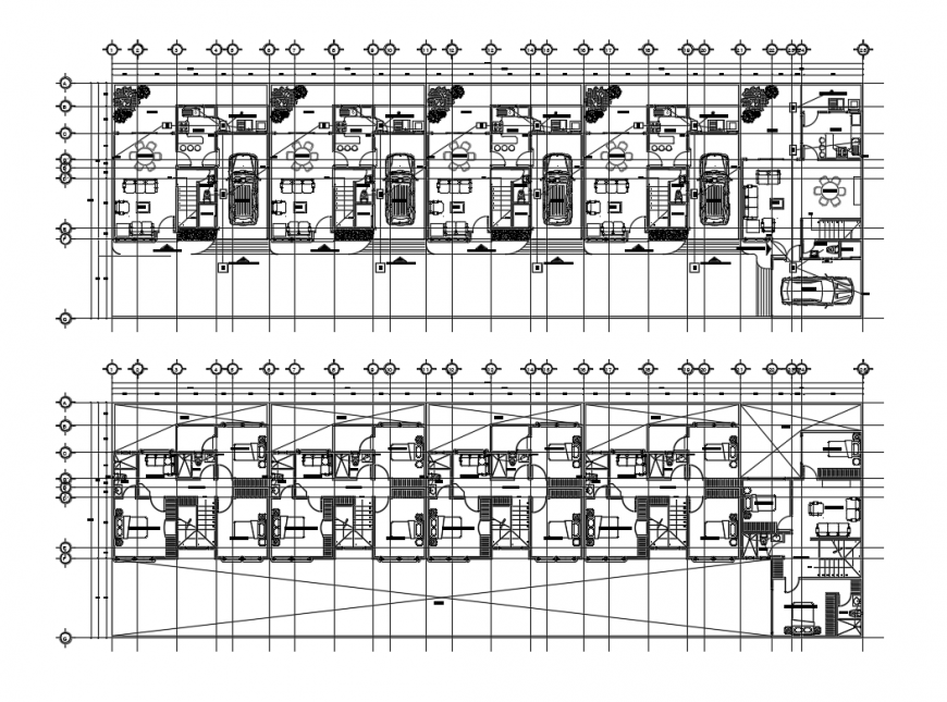
2d cad drawing of set hostel room elevation autocad software detailed with hostel room elevation shown with all room elevation and bed details shown with all necessary rooms and toilet area and bed with staircase area with dimension.
Uploaded by:
Eiz
Luna

