CAD layout detailing of apartment building dwg file
Description
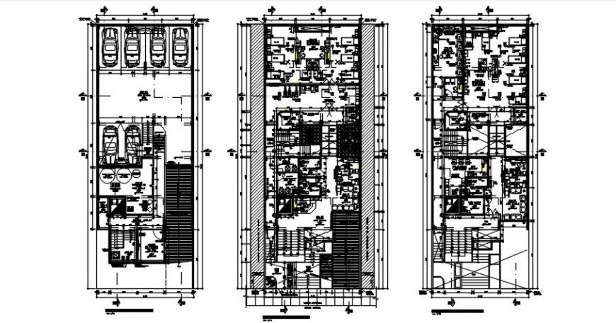
CAD layout detailing of apartment building dwg file that shows work plan of the house along with floor level detail and room details includes detail of drawings room bedroom kitchen and dining area along with sanitary toilet and bathroom details. House section details with roof plan details also included in drawings.
Uploaded by:
Eiz
Luna
