2d cad drawing of office elevation floor plan auto cad software
Description
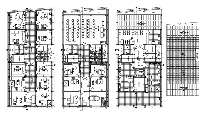
2d cad drawing of office elevation floor plan autocad software detailed with office plan with lecture room and meeting room and office area and lounge area and otyher detailed staircase area and dining area and other detailed drawing.
File Type:
DWG
File Size:
1.2 MB
Category::
Interior Design
Sub Category::
Modern Office Interior Design
type:
Gold
Uploaded by:
Eiz
Luna

