Office cabin layout plan with furniture and ceiling plan details dwg file
Description
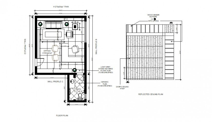
Office cabin layout plan with furniture and ceiling plan details that include a detailed view of wall sections, furniture layout plan, dimensions and not scale details, sanitary facilities, reception and waiting area etc with colours details and size details, type details etc for multi-purpose uses for cad projects.
File Type:
DWG
File Size:
545 KB
Category::
Interior Design
Sub Category::
Modern Office Interior Design
type:
Gold
Uploaded by:
Eiz
Luna
